La parcela donde se ubica el conjunto de viviendas recae a dos calles y hay un desnivel de unos 3 metros entre ellas. La propuesta contiene varias tipologías de viviendas, triplex, dúplex y simplex, y tienen un espacio común o “calle” interior para el acceso de los coches a los aparcamientos.
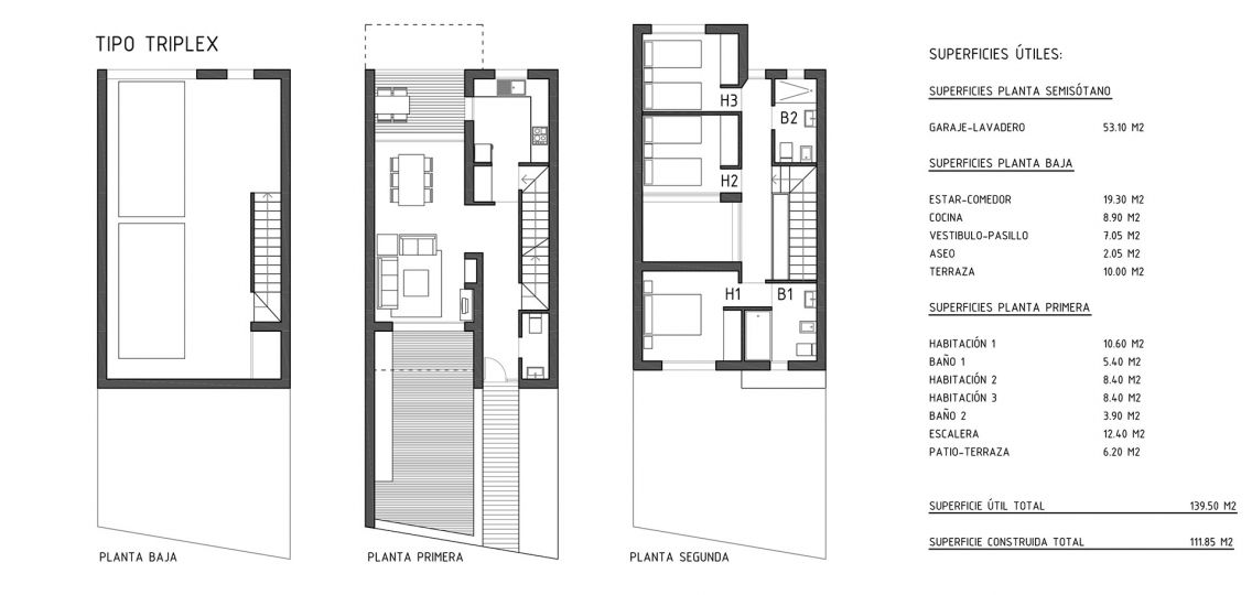
En la fachada sur se disponen cuatro viviendas tipo triplex, con el garaje en la planta sótano, estar, cocina y aseo en planta baja y tres dormitorios y dos baños en planta primera.
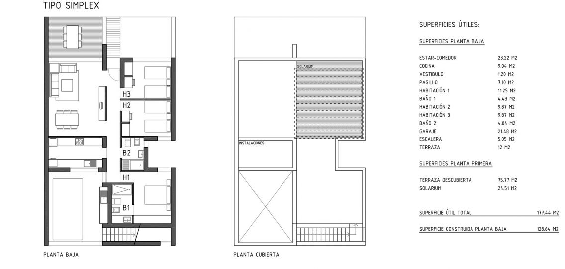
En la fachada norte tenemos una vivienda dúplex y dos simplex flanqueándola. Las viviendas simplex tienen estar, cocina, dos baños y tres dormitorios y las dúplex tienen estar, cocina y aseo en planta baja y tres dormitorios y dos baños en planta primera.
| Situación: | Bigastro |
| Provincia: | Alicante |
| Fecha proyecto: | 2007 |
| Fecha obra: | 2011 |
| Arquitecto Técnico: | Pepe Sáez Tomás |
| Promotor: | Promociones Gopior S.L. |












