El proyecto plantea la construcción de un comedor escolar en el patio del colegio CEI “La Paz” de Bigastro, para cubrir las necesidades de servicio de comida para los alumnos de 3 a 5 años del Centro. La solución arquitectónica que se propone pretende dar respuesta a las tres principales situaciones con las que nos encontramos:
- Una ubicación en una parcela en la que ya hay centro educativo existente con una determinada distribución: Se ha buscado una ubicación del nuevo comedor de manera que quede conectada directamente con el centro existente y no fragmente el patio de juegos.
- Un programa mínimo de comedor-cocina dentro del cual hemos de procurar establecer una funcionalidad máxima de las nuevas instalaciones con el resto del edificio a la vez que se permita un funcionamiento autónomo de la nueva edificación.
- Una estética que integre de manera armoniosa la nueva construcción en el conjunto del centro existente a la vez que posea su propio carácter.
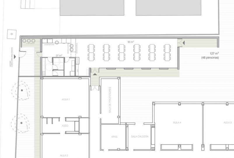
La nueva construcción es prácticamente aislada, ya que tiene fachada por tres lados y únicamente se adosa parcialmente en uno de sus frentes al edificio existente. Dará servicio a 96 comensales (48 comensales en dos turnos), y el servicio de comidas se realizará mediante catering, de acuerdo con el programa de necesidades establecido por Consellería.
Volumétricamente, la edificación está configurada por dos volúmenes rectangulares, correspondiendo con la zona de comedor y con la cocina. El volumen de cocina, de cubierta plana, es de dimensiones más domésticas, mientras que el volumen del comedor, de cubierta inclinada de mayor altura para darle un mayor protagonismo en el conjunto escolar.
| Situación: | Bigastro |
| Provincia: | Alicante |
| Fecha proyecto: | 2014 |
| Promotor: | Ayto. Bigastro / Conselleria de Educación |







