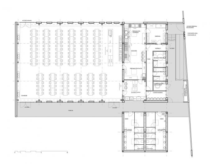
El origen del encargo fue un concurso en 2006 para la construcción de un comedor en un centro escolar existente. El colegio de primaria está situado en una zona residencial de la ciudad y cerca del mar. El edificio se proyecta como una construcción independiente que formará parte del conjunto de edificios de los que se compone el centro. Su ubicación permite la conexión directa con educación infantil y con el patio de juegos para los alumnos de educación primaría. Además la posición del comedor debe permitir la futura construcción de un gimnasio, siendo un requisito más del concurso.
El edificio está compuesto por un gran espacio que contiene la zona de comidas y por unos espacios anexos en los que se sitúan la cocina, la despensa y los vestuarios de personal. El edificio tiene un porche lineal que protege del sol la fachada de la orientación sur. Este porche sirve de acceso al comedor y también de conexión con otro pequeño volumen donde se ubican los aseos para los alumnos.
Las fachadas principales (norte y sur) se resuelven con una seriación de huecos de vidrio y paneles TRESPA de colores vivos. El resto de materiales utilizados son un enfoscado blanco y un revestimiento de chapa ondulada de color “inox”.
Artículo publicado en Plataforma de Arquitectura: http://www.plataformaarquitectura.cl/cl/02-193315/comedor-en-el-colegio-de-primaria-pla-de-barraques-belmonte-botella-arquitectos
| Situación: | El Campello |
| Provincia: | Alicante |
| Fecha concurso: | 2006 |
| Fecha proyecto: | 2008 |
| Fecha obra: | 2009 |
| Arquitecto Técnico: | Isidro León Muñoz |
| Ingeniero: | Pepe Maraldés Espuig |
| Promotor: | CIEGSA |
| Constructor: | PROCYR EDIFICACIÓN Y URBANISMO S.L. |















