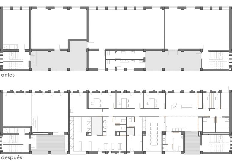
Reforma de la planta baja de un edificio en desuso construido en la posguerra, para albergar las nuevas dependencias de la policía local de Bigastro.
Planteamos la redistribución completa de los espacios interiores, adaptándolo a los nuevos usos y creando unos espacios interiores luminosos y sencillos, donde se combinan diferentes materiales que dan un aspecto dinámico y atractivo. Para ello se opta por la utilización del blanco en paramentos verticales y techos, contrastando con el mosaico de diferentes colores que se ha proyectado para el suelo.
El desarrollo de ventanas exteriores había sufrido diferentes variaciones a lo largo de su vida; proponemos volver al sistema de seriación de ventanas, manteniendo su huella original y variando su dimensión según el uso interior.
| Situación: | Bigastro |
| Fecha proyecto: | 2009 |
| Fecha obra: | 2009 |
| Arquitecto Técnico: | Antonio Campos Hoyos |
| Promotor: | Excmo. Ayuntamiento de Bigastro |
| Constructor: | Promociones Navasaez S.L. |










