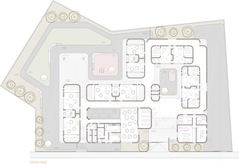
La propuesta se plantea como una sucesión de cajas redondeadas que adaptan a la forma de la parcela y ordenan el programa de necesidades. Se utilizan dos criterios compositivos, uno introvertido al patio dando la espalda al espacio exterior donde se ubican las aulas de 0-1 año. Y otro con carácter extrovertido con las aulas conectadas directamente al espacio exterior de juegos.
La materialidad comprende toda una serie de soluciones que garantizan un espacio confortable y libre de accidentes, así como la disposición de esquinas redondeadas que dota al conjunto de un aspecto más ergonómico.
| Situación: | Talavera de la Reina |
| Provincia: | Toledo |
| Fecha concurso: | 2010 |
| Promotor: | Consejería de Educación, Ciencia y Cultura de Castilla-La Mancha |
| Constructor: | PROCYR EDIFICACIÓN Y URBANISMO S.L. |





