El presente proyecto desarrolla el diseño de un edificio de laboratorios para el Campus de Los desamparados de la Universidad Miguel Hernández, en su sede de Orihuela. La construcción de dichos laboratorios se hace necesaria, ya que en los edificios de laboratorios existentes en la actualidad en el Campus no reúnen las condiciones necesarias para su buen funcionamiento.
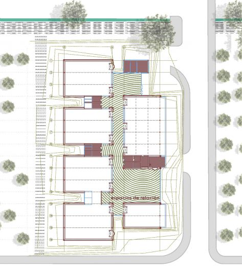
Para el desarrollo del proyecto se propone una estrategia de asentamiento basada principalmente en parámetros de adaptación al entorno y en parámetros de funcionalidad. Por un lado el proyecto se integra en el Campus, adaptándose al eje de crecimiento del mismo, a la vez que genera un nuevo sistema de espacio público interior versátil. El edificio se asienta sobre la huerta, haciéndose participe de ella, y utilizando la huella de los campos de naranjos como trama estructuradora del conjunto. Así mismo, el conjunto asume el papel de observador de su entorno: mira hacia la sierra de Orihuela y el Río Segura, formando estos elementos parte de su escenografía; mira hacia los huertos de naranjos que le rodean, mimetizándolos en su estructura; mira hacia el Campus, adaptándose a su trama urbanística, participando de su espacio y creando un nuevo espacio de relación.
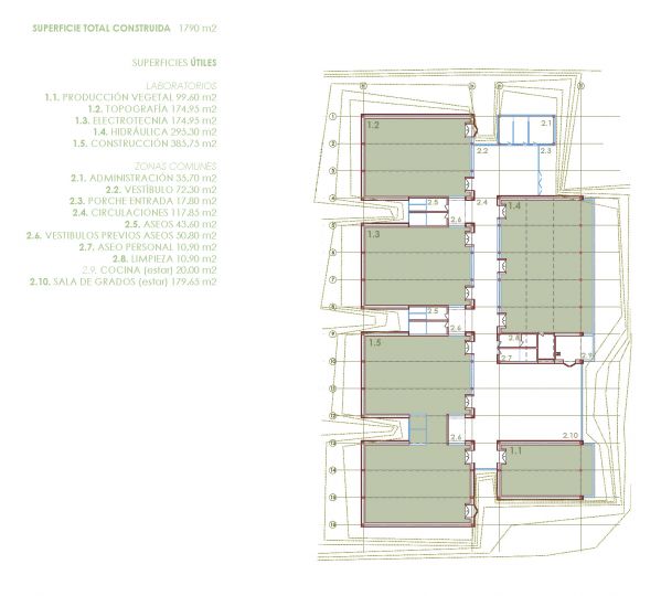
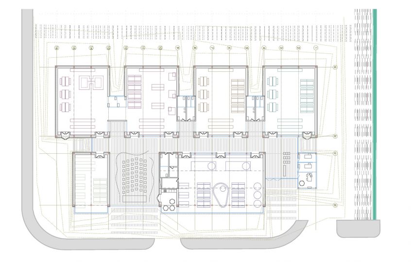
El programa de necesidades propuesto reúne laboratorios de diferente uso y tamaño, así como espacios comunes de relación de los usuarios. Se desarrollan cinco laboratorios:
– Producción Vegetal 99.60 m2
– Topografía 174.95 m2
– Electrotecnia 174.95 m2
– Hidráulica 295.30 m2
– Construcción 385.75 m2
Estos laboratorios se complementan con un amplio espacio diáfano que les sirve como elemento unión, configurando el conjunto del edifico, en el que se albergan todos los elementos comunes como la Dirección, Secretaría, sala de usos múltiples, zona de cocina para uso de los laboratorios, baños y almacenes. Este espacio se configura como el espacio público, un Ágora que se introduce dentro del conjunto, un espacio dinámico y versátil.
Un parámetro importante que se ha tenido en cuenta a la hora de diseñar el conjunto edificatorio es la eficacia energética del mismo. Por eso mismo se busca desarrollar aspectos como la ventilación natural, la utilización de la cubierta jardín, placas solares, …
Todos estos elementos, nos han permitido desarrollar un sistema compositivo que genera y ordena el edificio:
- Cinco laboratorios: Construcción, Hidráulica, Electrotecnia, Topografía y Producción Vegetal.
- Estos cinco volúmenes, de diferente superficie y altura, que se ordenan en la parcela y se relacionan con su entorno. Necesidad de un espacio común que sirva de relación de los laboratorios
- Los volúmenes se ordenan siguiendo la trama generada por los huertos de naranjos. El espacio de las zonas comunes sirven como elemento de unión de los distintos laboratorios, generando espacios de interrelación de los usuarios (zaguán, sala de usos múltiples, dirección, administración, baños, cocina…
- Todos los elementos que componen el proyecto se encajan en la parcela de manera ordenada.
- Se genera un conjunto arquitectónico limpio, sencillo, funcional y atractivo.
| Situación: | Orihuela |
| Provincia: | Alicante |
| Fecha concurso: | 2007 |
| Coautor: | San Juan Arquitectura |
| Promotor: | Universidad Miguel Hernández |











