Ubicado en un entorno privilegiado de la población de Bigastro desde donde se domina toda la Vega Baja, el nuevo mirador-zona de descanso surge como germen que colonizará y ordenará todo el entorno del Cabezo, para reactivar la zona.
Se diseñan tres plataformas-miradores-zonas de descanso, coincidiendo con las mejores vistas. Estos tres elementos, cubiertos de césped artificial color grana, sirven tonta de zona de mirador, como zona de descanso. El conjunto se complementa con otra zona de bancos y papeleras.
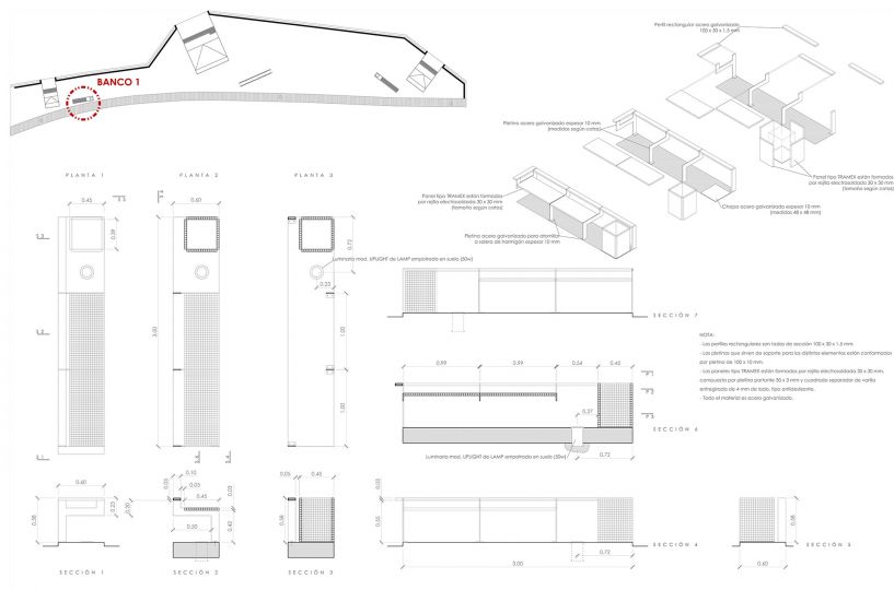
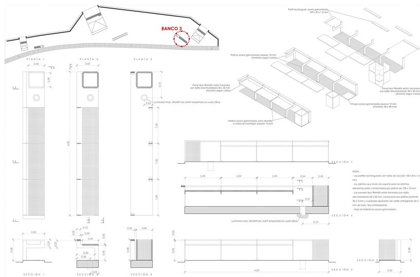
Todo el mobiliario urbano se realiza en rejilla de tramex, dando una imagen más fría que contrasta con la calidez que da el césped artificial de los miradores y la tierra de albero que cubre el conjunto.
| Situación: | Bigastro |
| Provincia: | Alicante |
| Fecha proyecto: | 2010 |
| Fecha obra: | 2010 |
| Promotor: | Excmo. Ayuntamiento de Bigastro |
| Constructor: | Promociones Navasaez S.L. |





















