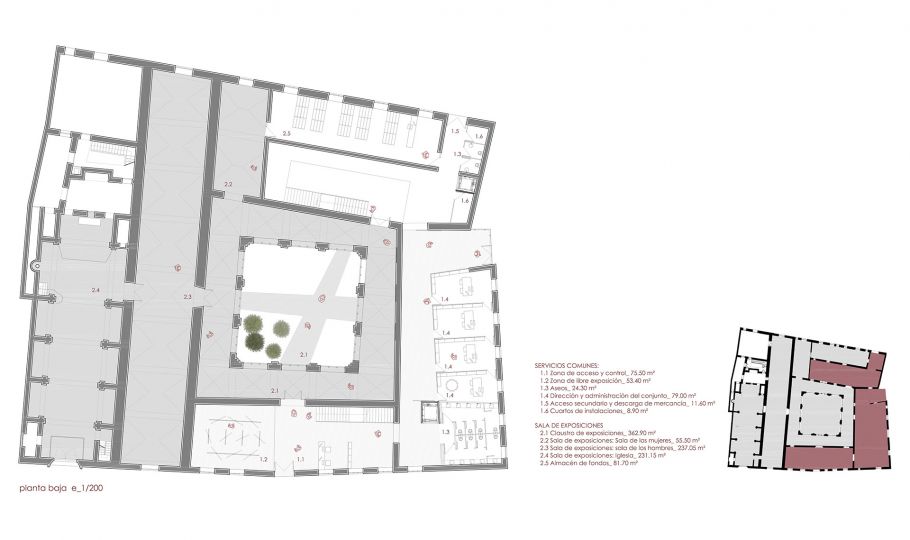
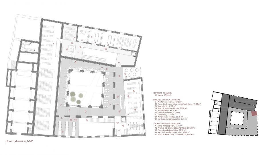
La intervención propuesta se fundamenta en utilizar el edificio existente como elemento contenedor de las nuevas funciones. De esta manera nos apoyamos en las antiguas trazas manteniendo el carácter claustral del conjunto. El edifico tiene que albergar una biblioteca y sala de exposiciones, así como espacios para archivo y restauración de las obras.
Las diferentes ampliaciones y reformas que ha sufrido el hospital a lo largo de su historia le ha provocado una imagen volumétrica caótica. La intervención pretende regularizar volúmenes mediante la unión y conexión de los diferentes espacios residuales.
A lo largo de la historia de la arquitectura los claustros de los conventos se han utilizado como espacios de relación. Para reforzar esta idea, se traslada este espacio de relación a la cubierta del edificio, permitiendo así un uso más dinámico de todo el conjunto.
| Situación: | Orihuela (Alicante) |
| Fecha concurso: | 2007 |
| Coautor: | San Juan Arquitectura |
| Promotor: | Excmo. Ayuntamiento de Orihuela |




























