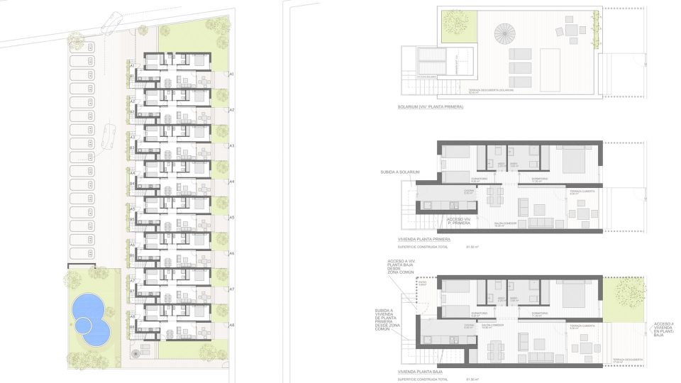
El presente proyecto está formado por un conjunto de 16 viviendas unifamiliares adosadas en una parcela total de 1.548 m². El conjunto a desarrollar tiene ocho viviendas en planta baja, con acceso desde la fachada delantera y otras ocho viviendas en planta primera con acceso desde la fachada trasera a través de la zona común exterior destinada al aparcamiento de coches y zonas ajardinadas. Esta zona común tiene una superficie de 81,79 m2.
La vivienda de planta baja, con acceso desde la calle a través de su zona privada de jardín y terraza, posee un distribución interior en la que se ha seguido una jerarquización de espacios sirvientes/servidos. De esta manera se han agrupado los espacios comunes (terraza- estar-comedor-cocina) en una franja, y los espacios privados (dormitorios- aseo-baño) en otra franja lateral. Esta vivienda se remata con un patio trasero que da acceso a la zona común del resto de la parcela. También han sido factores determinantes de la distribución interior un uso económico del espacio y la posibilidad de iluminación y ventilación directa desde el exterior de las distintas dependencias.
La vivienda de planta primera tiene acceso desde la zona común del interior de la parcela, subiendo a planta primera a través de una escalera privativa para cada una de las viviendas. La distribución de esta vivienda sigue el mismo esquema que la vivienda de planta baja, con el añadido de poseer una escalera privada para el uso de la cubierta a modo de solárium.
| Situación: | Torre de la Horadada |
| Provincia: | Alicante |
| Fecha proyecto: | 2010 |
| Fecha obra: | 2013 |
| Arquitecto Técnico: | Vicente Serrano González |
| Promotor: | Promociones Navasaez |










