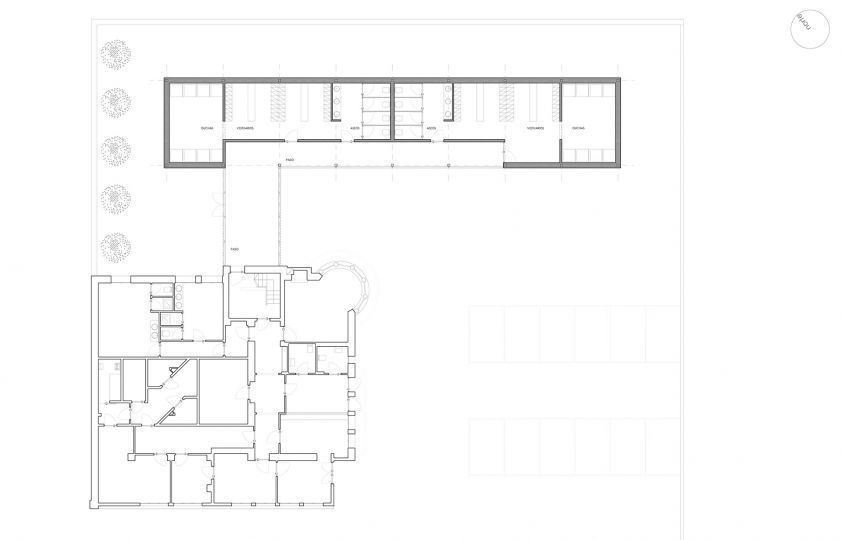
El objeto del concurso es la ampliación del reten de la policía local de Lliría. La solución contempla la construcción de un volumen anexo al edificio existente y dentro de la parcela del conjunto. El nuevo edificio contendrá exclusivamente los vestuarios del personal, dado el aumento de personal en el cuerpo de la policía local del municipio.
La materialidad del conjunto se basa en soluciones de construcción en seco para la estandarización del edificio e intentar eliminar costes superfluos. Todo del edificio se ha modulado para su fácil ejecución. La fachada es de paneles prefabricados de hormigón celular.
| Situación: | Lliría |
| Provincia: | Valencia |
| Fecha concurso: | 2008 |
| Promotor: | Ajuntament de Lliría |













