La vivienda ocupa una parcela del casco urbano de Bigastro, de dimensiones rectangulares, tras el derribo de la anterior edificación.
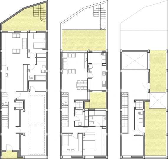
En la planta baja se sitúa el aparcamiento y el acceso desde la calle, completándose el espacio con el añadido de unos espacios de uso esporádico (habitación de invitados y salón). En planta primera se desarrolla el programa completo de vivienda unifamiliar, estar, cocina, dos dormitorios y dos baños. La zona de día se orienta al norte con una gran terraza abierta al patio interior de parcela y la zona de noche se orienta a sur en la fachada a calle. Los espacios de baño están iluminados y ventilados por un patio interior que también aporta luz extra a la cocina y el estar. En la última planta encontramos un espacio multiusos con una terraza lateral.
| Situación: | Bigastro |
| Provincia: | Alicante |
| Fecha proyecto: | 2005 |
| Fecha obra: | 2007 |
| Arquitecto Técnico: | Benigno Alcaina García |
| Promotor: | Francis Montesinos |



